NHÀ PHỐ VALORA ISLAND
Khu nhà phố Valora Island được chủ đầu tư Nam Long đầu tư phát triển với số lượng giới hạn, nằm ngay cửa ngõ vào khu đô thị Mizuki Park quy mô khu đô thị 37ha với 25.000 dân. Valora Island được sông nước bao quanh hai mặt, sở hữu một địa thế phong thủy độc đáo, mang lại may mắn, sức khỏe và tài lộc cho chủ nhân.

TỔNG THỂ NHÀ PHỐ VALORA ISLAND:
- Tên hạn mục: Khu nhà phố Valora Island
- Vị trí: Nguyễn Văn Linh, Bình Hưng, Bình Chánh, TP. Hồ Chí Minh
- Chủ đầu tư: Công ty Cổ phần Đầu tư Nam Long
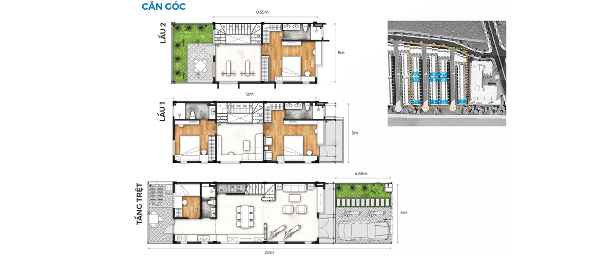
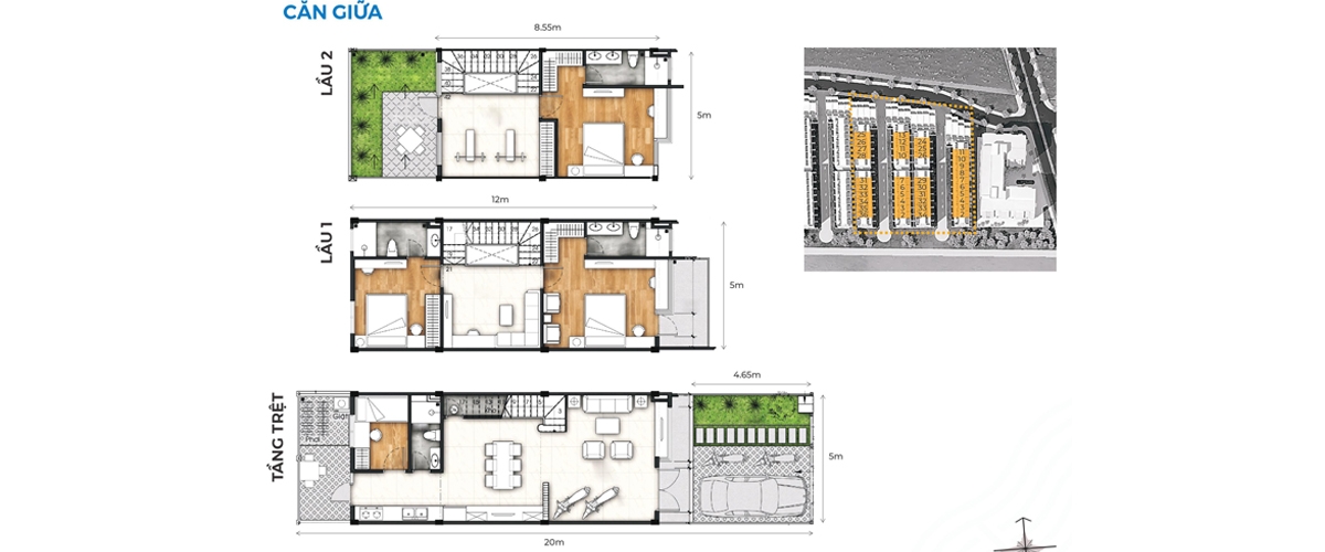
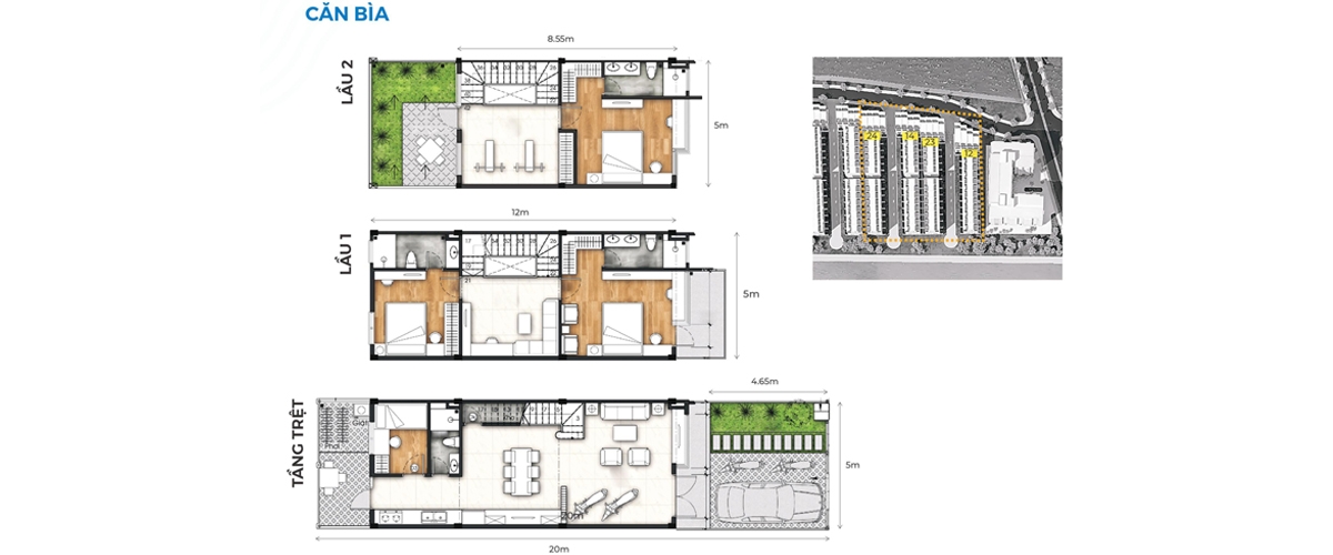
- Diện tích: 5×20 thiết kế 1 trệt 2 lầu
- Pháp lý: Sổ hồng, sở hữu ổn định lâu dài
- Tiến độ bàn giao: Quý IV/2018
VỊ TRÍ DỰ ÁN
Khu nhà phố Valora Island nằm ngay cửa ngỏ vào khu đô thị Mizuki Park, đường Nguyễn Văn Linh lộ giới 120m với 10 làn xe. Với hàng loạt công trình giao thông trọng điểm trong tương lai như nút giao Nguyễn Hữu Thọ – Nguyễn Văn Linh, tuyến metro số 4 từ Q.12 đến Q.7, tuyến cao tốc Bến Lức – Long Thành…vị trí ở đây sẽ trở nên giá trị hơn bao giờ hết: 5km đến Phú Mỹ Hưng, 6.5km đến Chợ Lớn, chợ An Đông, 9km đến Chợ Bến Thành, 15km đến sân bay Tân Sơn Nhất.
Từ vị trí khu nhà phố Valora Island Nam Long, quý cư dân trong vòng 10 – 15 phút sẽ tiếp được cận hệ thống tiện ích đẳng cấp quốc tế của Phú Mỹ Hưng như Bệnh viện FV, Viện Tim Tâm Đức, Trung tâm thương mại Crescent Mall, SC Vivo City, Đại học RMIT, khu Hồ Bán Nguyệt – cầu Ánh Sao… hay vào trung tâm khu vực chợ Lớn, chợ Bến Thành vô cùng sôi động.

MẶT BẰNG DỰ ÁN

THIẾT KẾ DỰ ÁN


ĐÁNH GIÁ DỰ ÁN
Khu nhà phố Valora Island với diện tích mỗi lô đất 120m2 được thiết kế 1 trệt 2 lầu, hai mặt đều là sông nước sẽ tạo nên một không gian sống trong lành tươi mát cho bạn và gia đình. Ngoài ra, khu nhà phố Nam Long này còn nằm ngay cửa ngỏ vào khu đô thị sầm uất Mizuki Park quy mô 37ha hơn 25.000 dân, với hệ thống tiện ích vượt trội hứa hẹn sẽ làm gia tăng giá trị lớn cho chính ngôi nhà của bạn khi đô thị được hoàn thành.

